Specialty & Ball Valve Engineering, Inc.Specialty & Ball Valve Engineering, Inc.
If you can not find it... We'll design & build it.


Ball Valves for fire suppression Water-mist systems

Navy qualified ball valves per MIL-V-22687

Specialty & Ball Valve Engineering, (SBVE) is pleased to announce a new product line. The “WM” WATER-MIST ball valve family for shipboard fire suppression systems.

The Navy (and commercial fleets) have moved away from Halon systems and now require a safer human factors method for fire suppression. Navy Water-mist systems specify reliable ball valves qualified to MIL-V-22687. This specification is circa 1960’s following loss of USS Thresher submarine with all hands. The Navy hence requires ball valves for critical systems to meet this specification. Fire suppression systems are considered critical and specify MIL-V-22687 ball valves. SBVE now offers such a family of valves specifically “optimized” for Water-mist applications.

SBVE considered using its 5ksi valve family, but these are too heavy and overbuilt for 1500 psi water systems. Most Navy Water-mist valves are actuated, not manual. This requires Navy qualified actuators to be attached from above. As such, SBVE offers an “optimized” family of valves for Water-mist applications. These valves incorporate our decade’s long qualified internal components, but now with “optimized” valve bodies in the following ways.

a. body is slimmed to reduce weight for Water-mist 1500 psi, schedule 40 piping
b. body incorporates a “round” boss at its base to perfectly align actuator with valve stem
c. body top surface provides fastener locations for actuator
d. SBVE valve design allows ALL COMPONENTS, or re-kit items, to be loaded thru the Bonnet
e. normally this would require DETACHING THE ACTUATOR, but not for SBVE Water-mist valves
f. SBVE Water-mist bodies incorporate a second BOTTOM ENTRY, Cap or Plug
g. SBVE Water-mist valves can be re-kitted WITHOUT REMOVING TOPSIDE ACTUATOR!
h. simply remove the body Cap or Plug at bottom of body, and perform valve maintenance
i. for MANUAL water-mist applications, our standard lever handle is available

(Click on the image to see larger view)

 

 

12BW

¾-inch butt weld piping Water-mist actuated valve.

 

 

16BW

1-inch butt weld piping Water-mist actuated valve.

 

 

20BW

1-1/4 inch butt weld piping Water-mist actuated valve.

 

 

32BW

2-inch butt weld piping Water-mist actuated valve.

 

 

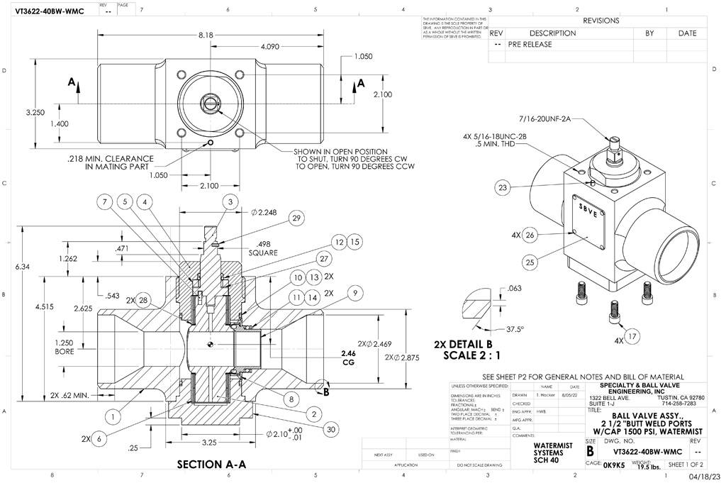
40BW-WMC

2-1/2 inch butt weld piping Water-mist actuated valve.

 

 

40BW-WMM

2-1/2 inch butt weld piping Water-mist manually actuated valve.

 

 

40-BW-WMMF

2-1/2 inch butt weld piping Water-mist manually actuated valve.

Shown with welded flanges and shortened operator.

Select the best features for your application and then contact an SBVE applications engineer who will help you specify the right actuator for your job.

Note: SBVE will assist you in the critical task of system design to assure safe, trouble-free performance. However, materials selection, compatibility, adequate ratings, proper installation, operation and maintenance are ultimately the responsibility of the customer and end user.


Home
Products
Home
Home
Home
Home
Home
Home
Home
Home
Home
Home

Other
Data Sheet

Company Information
Stie Map
Profile border=
News
Contact

Specialty & Ball Valve Engineering, Inc. SBVE
1322 Bell Ave. Suite 1-J Tustin, CA 92780
Phone: 714-258-SBVE(7283)   Email: govtinfo@earthlink.net